1 Standard
Material specifications: International Standard:RCC-M M3306 Z5CN18-10;
National Standard: GB/T 4237 S30408
Dimension Standard: National Standard:GB/T 11263
2 Chemical Composition
Z5CN18-10 Chemical Composition,%
| Elements | C | Mn | P | S | Si | Cr | Ni | Cu | B |
| Min | 17.00 | 9.00 | |||||||
| Max | 0.060 | 2.00 | 0.035 | 0.020 | 1.00 | 20.00 | 12.00 | 1.00 | 0.0018 |
| Actual value | 0.018 | 0.95 | 0.028 | 0.003 | 0.37 | 18.17 | 9.58 | 0.16 | 0.0005 |
S30408 Chemical Composition,%
| Elements | C | Mn | P | S | Si | Cr | Ni | N |
| Min | 17.50 | 8.00 | ||||||
| Max | 0.07 | 2.00 | 0.045 | 0.030 | 0.75 | 19.50 | 10.50 | 0.1 |
| Actual value | 0.018 | 0.95 | 0.028 | 0.003 | 0.37 | 18.17 | 9.58 | 0.06 |
Z5CN18-10 Mechanical Properties
| Mechanical Properties |
Tensile Strength MPa |
Yield Strength MPa |
IMPact AKv(transversal) 10×10×55,J |
Elongation (longitudinal) % |
Bending |
| Min(Requirements) | 520 | 210 | 60 | 45 | No crack, tearing and bulging on the outside surface |
| Max(Requirements) | |||||
| Actual value | 579 | 257 | 288 | 56 | Qualified |
S30408 Mechanical Properties
| Mechanical Properties |
Tensile Strength MPa |
Yield Strength MPa |
Hardness HBW |
Elongation (longitudinal) % |
| Min(Requirements) | 515 | 205 | 40 | |
| Max(Requirements) | 201 | |||
| Actual value | 568 | 253 | 182 | 54 |
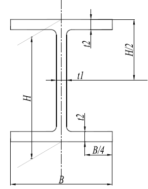
3 Typical Size

| Size | Size tolerance | |||
| B | H | t1 | t2 | |
| 125*125*6.5*9 | 125±2.5 | 125±2 | 6.5±0.7 | 9±1.0 |
| 150*150*7*10 | 150±2.5 | 150±2 | 7±0.7 | 10±1.0 |
| 200*200*8*12 | 200±3 | 200±2 | 8±0.7 | 12±1.0 |
4 Typical Application Environment
It is mainly used in the emergency residual heat removal cooler of nuclear power plant.

